Home Design
Rooted In Nature, Designed For Generations
Three Oaks Reserve’s architect and design team has focused on combining unique reclaimed century old finishes with Frank Lloyd Wright inspired floor plans to bring timeless green build dreams to life. Modify our plans or bring your own to this one of a kind neighborhood where each home has more than its own address but its own identity.
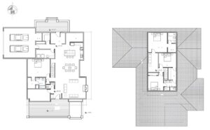
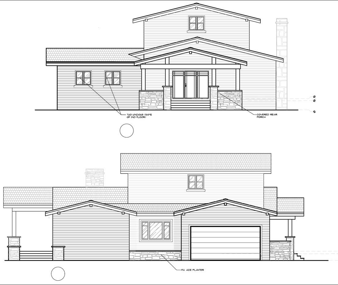
The Oaks Bungalow
Experience the charm of “The Oaks Bungalow” a modern California Bungalow blending vintage warmth with contemporary luxury. Featuring a deep front porch, open-concept living, and artisan wood detailing, this two-story haven offers seamless indoor-outdoor living. Discover sunny, airy spaces featuring curated architectural salvage pieces marrying timeless craftsmanship with modern comfort just steps from a natural paradise filled with walking trails and wildlife. Peace and tranquility are calling!
- 4 Bedrooms
- 3.5 Bathrooms
- 3100 sq ft







